Rodinný dům Modletín, okr. Havlíčkův Brod- -PRODÁNO 2 440 000 Kč
informace
popis
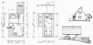
Ve výhradním zastoupení majitele Vám nabízíme samostatně stojící rodinný dům se zahrádkou, který se nachází v klidné a rekreační obci Modletín (část obce Rušinov). Tento dvoupodlažní cihlový dům má dispozici 3+1 s celkovou užitnou plochou 68 m2 (včetně sklepa, bez terasy). V přízemí je obývací pokoj s kuchyní a koupelnou a v patře se nachází dva pokoje se 7 postelemi. V suterénu je pak suchý sklep na uskladnění nářadí, kol, dřeva nebo zeleniny. Celý dům je ve velmi pěkném a udržovaném stavu. V posledních 15 letech prošel několika rekonstrukcemi a opravami, včetně nových rozvodů vody a elektřiny, nové podlahy, nové kuchyně a koupelny a další. Dům je napojen na elektrickou energii, obecní vodovod a vlastní septik. Vytápění je řešeno krbem s rozvodem tepla po domě s možností přitápění elektrickými přímotopy. Ohřev vody je řešený novým elektrickým bojlerem. Celý pozemek je oplocený s přístupem ze dvou stran a s možností parkování ihned u domu na obecním pozemku. Nemovitost doporučuji všem, kdo hledá pěkný udržovaný dům, ideální k rekreaci nebo trvalému bydlení.


